As a continuum to our 3D Modeling services, Scan-BIM over the years has really catapulted to mainstream popularity and has taken the entire AEC industry by storm. The last decade or so has been a testament to its meteoric rise in its adoption across the AEC industry around the world.
TheDraftRack’s engineers have a cumulative experience of 20+ years and for the last 8+ years or so have been involved in rendering quality Scan to BIM services to various stakeholders within the AEC industry viz.
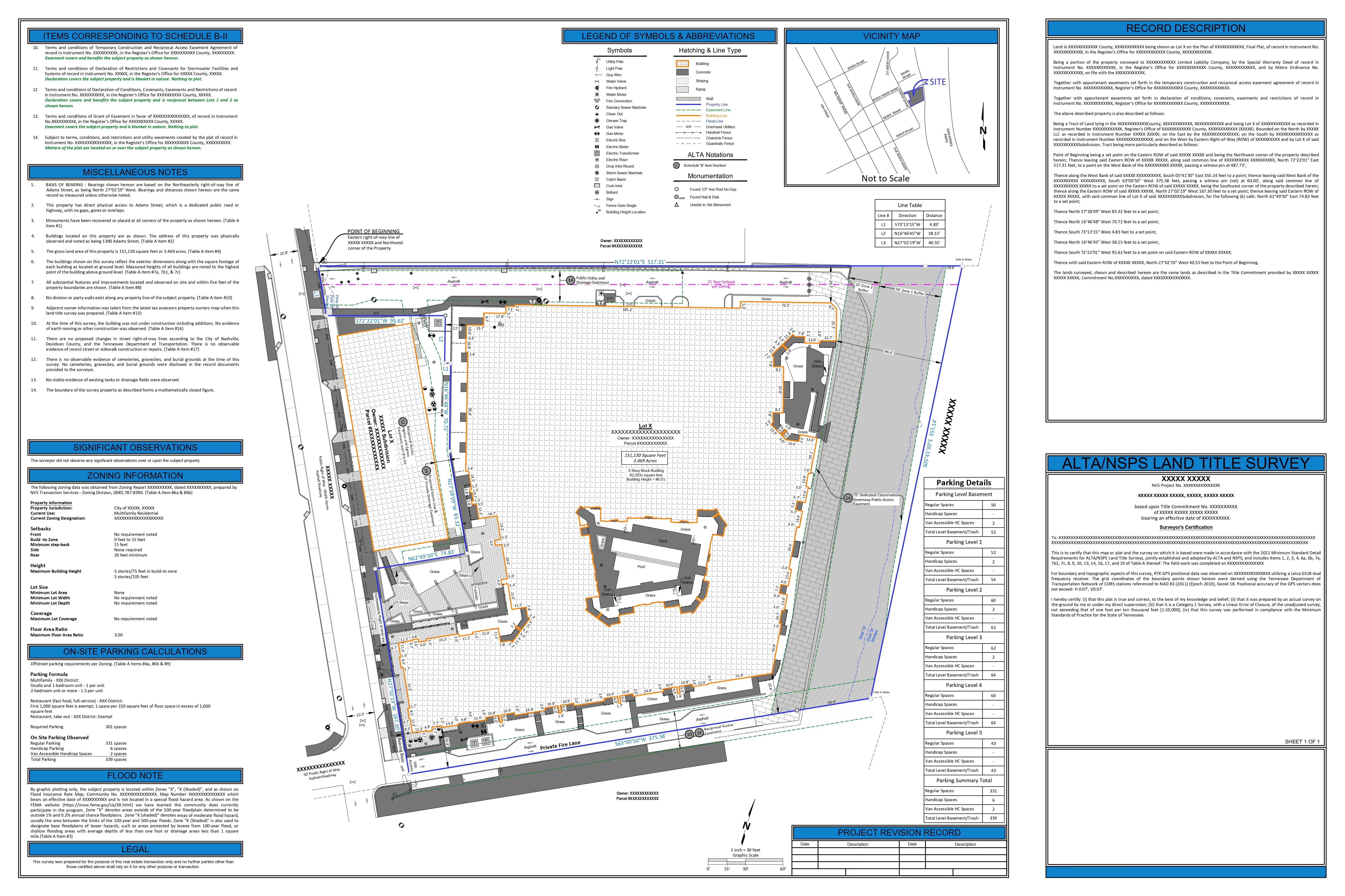
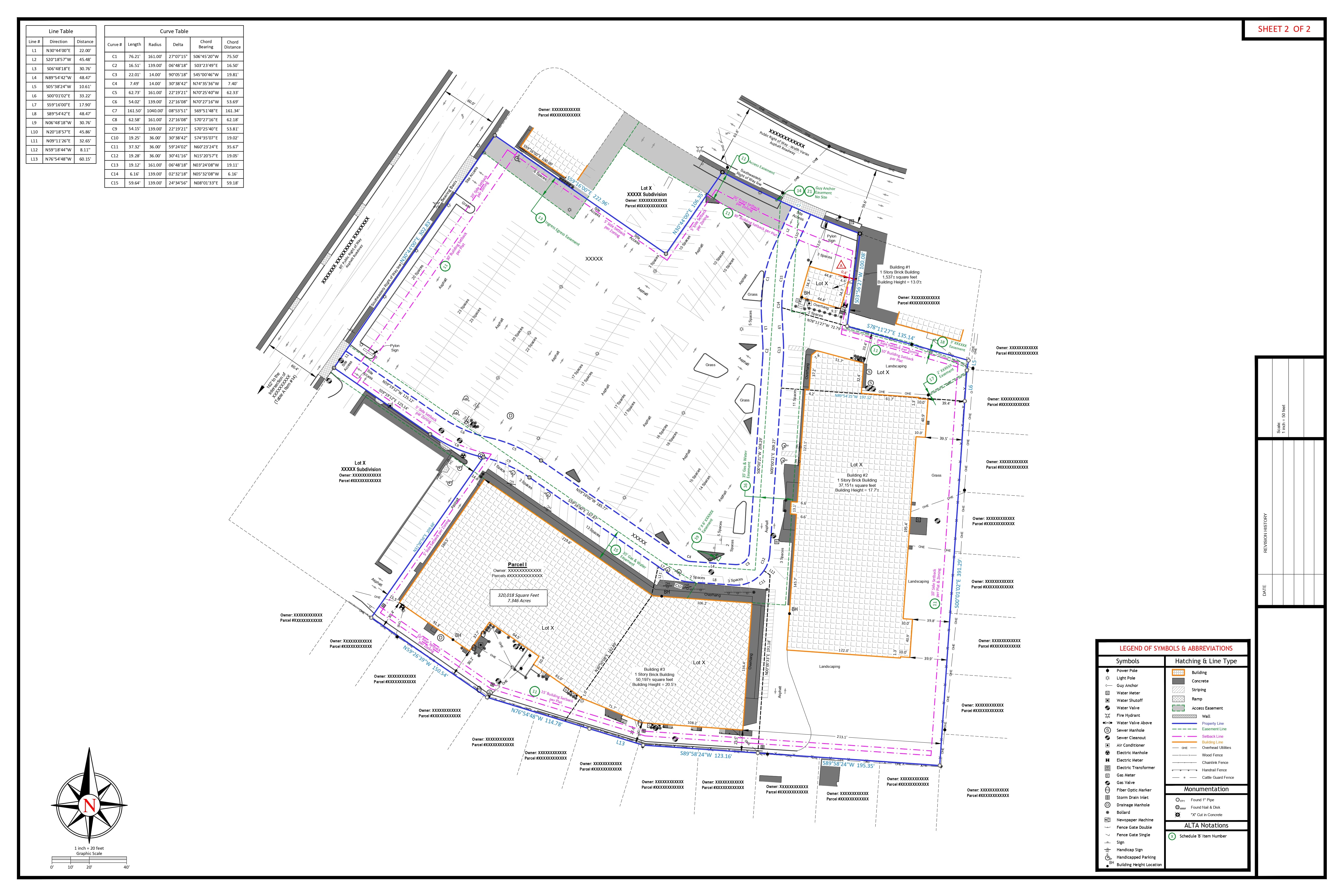
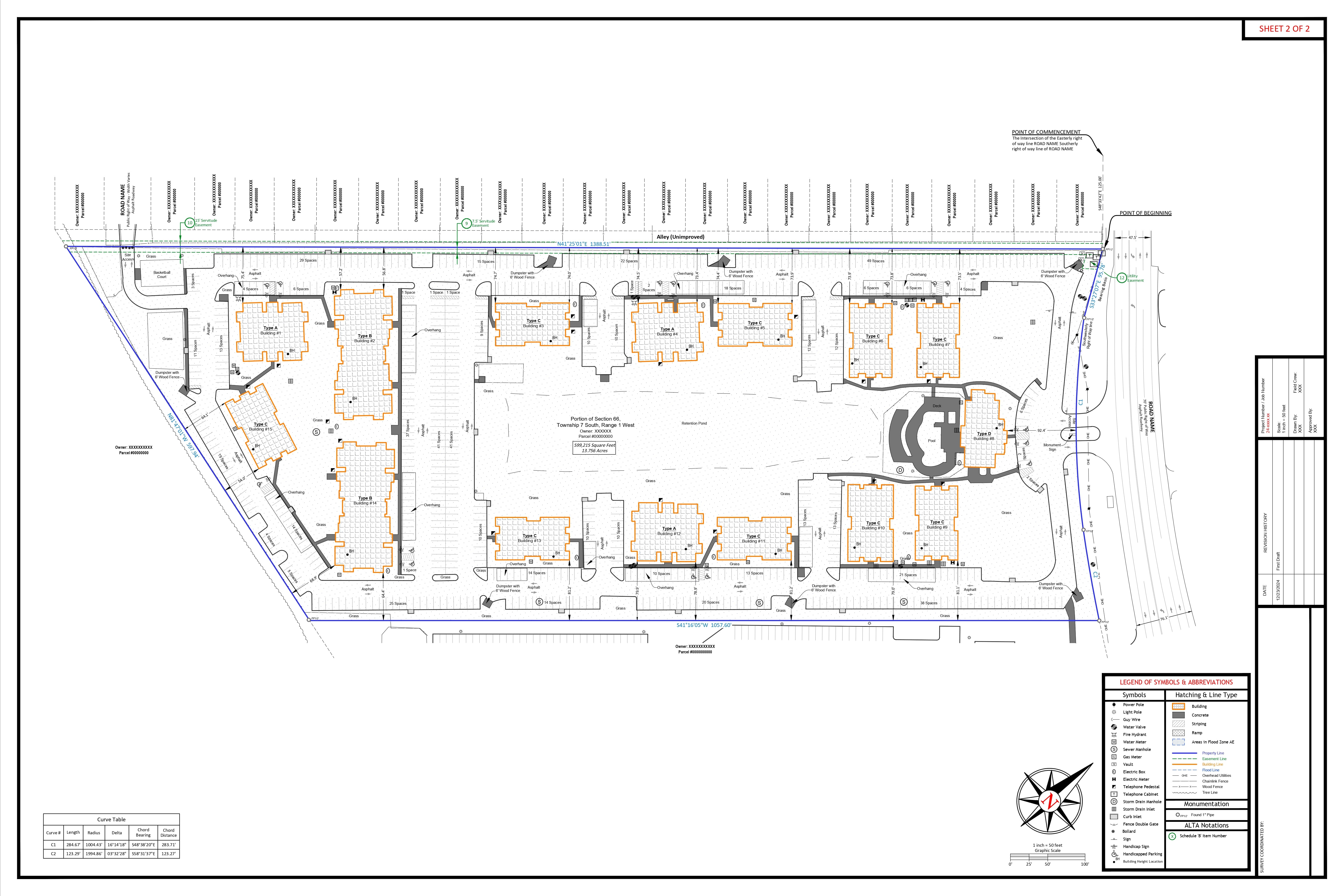
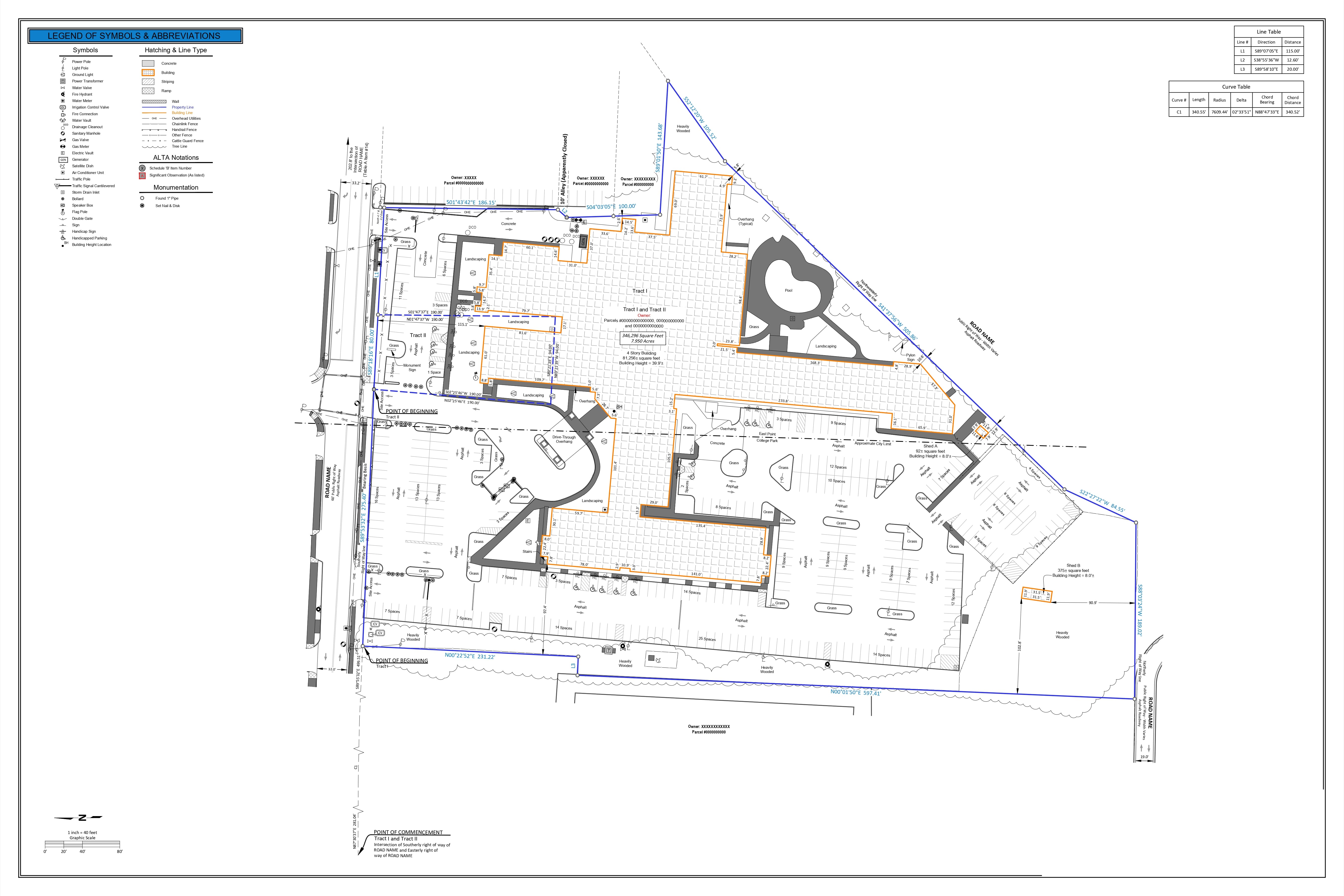
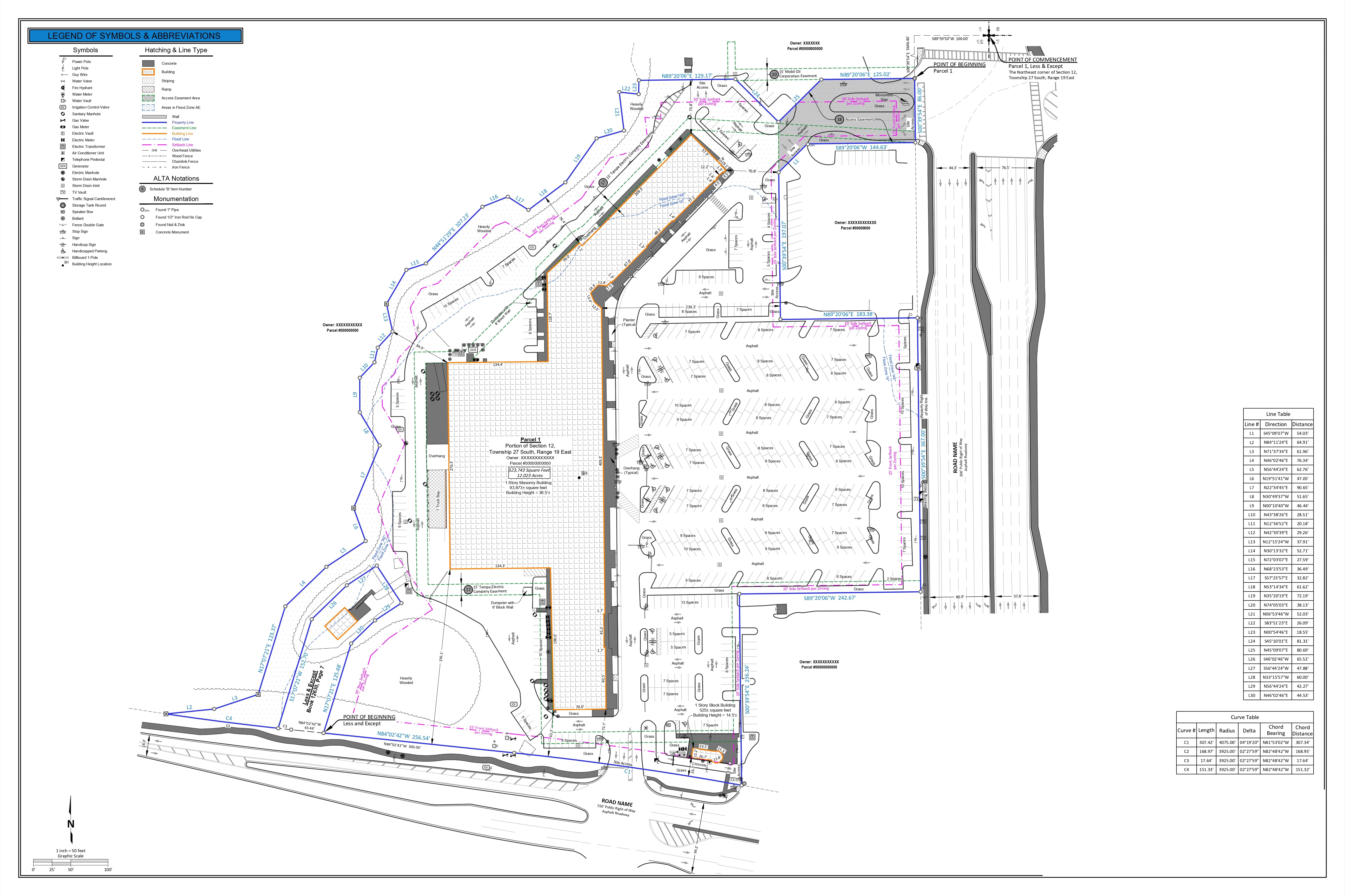
Land Survey CAD Drafting | Land Development Design Drafting
TheDraftRack © 2025
We seek to take the expertise acquired over the years & keep working diligently to adapt ourselves to the growing demands of the ever-so-changing AEC industry. The process is to learn – replicate – learn – replicate.
US Address
30 N Gould St, Ste 4262,
Sheridan, WY 82801
India Address
131/1B, Office No 4,
Sai Heritage, Baner,
Pune 411045
























































